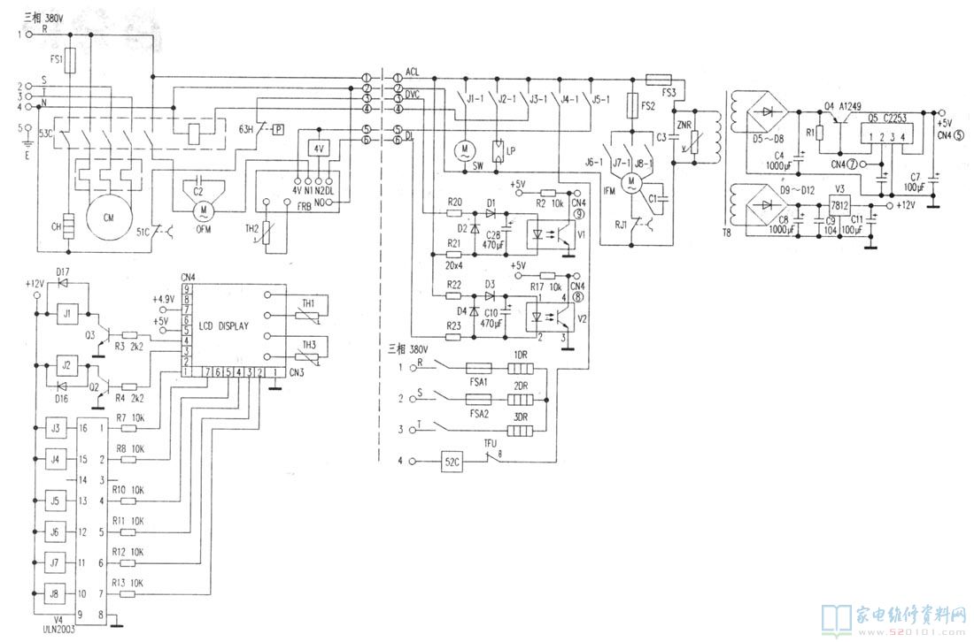
1.稳压电路
接通电源,交流电220V由电源变压器TB降压,一组9V由D5~D8组成桥式整流再由Q4、Q5稳压后输出+5V、4.9V,通过CN4⑤脚和CN4⑦脚为液晶显示器LCD供电;另一组13.5V由D9-D12组成桥式整流,由稳压块7812输出+12V,为驱动块ULN2003和继电器供电。
2.工作状态
(1)制冷:接通电源,延时几分钟后,从液晶显示器LCE的CN4①脚和CN3③脚输出4.9V电压.经过R7、R12降压为2v到ULN2003的⑥脚、①脚输入端,使11、16脚输出低电平,J3、J7继电器动作,交流接触器53C得电工作,室内室外风机、压缩机开始工作处于制冷状态。(2)制热:来自LCD的4.9V控制电压通过CN4①脚、CN3③、⑤、⑦脚输入,使ULN2003的11、13、15、16脚输出低电平,使J4继电器动作,52C交流接触器接通,使三只辅助电加热1DR-3DR工作,J5动作使电磁换向阀4V得电工作,J3、J7动作使室内室外风机、压缩机工作使系统处于制热状态。
(3)灯管LP、扫风SW由J2、J1继电器控制,室内风机IFM的高速HF、中速MF、低速LF相应由J6、J7、J8继电器控制。
(4)冬天制热运行44
分钟后,室外化霜感温包TH2检测温度低于-5℃时开始除霜,这时电路板上DL和AC L间有220V交流电压,光电耦台器V2①、②脚得电工作,③、④脚导通,④脚与液晶显示器LCD和CN4⑨脚相连,LCD得到控制信号使CN3⑤、⑦脚无4.7V控制电压,J5、J6断开,使辅助电加热器和电磁换向阀4V断电不工作,直到除霜8分钟或室外侧点温度高于+10℃时,化霜才停止,然后进入正常制热运行。
强制制冷:接通电源“嘀”一声后,液晶显示器LCD无显示,按一下温度下降设置键“▽”即可。
强制制冷:接通电源“嘀”一声后,液晶显示器LCD无显示.按一下温度上升设置键“△”即可。
二、故障检修实例
1.不能启动运行,无任何显示
接通电源,有+12V、+5V输出,测Q5 C2253①、②脚电压为8V、0V,正常应是11V、5V,检测C2253正常,测C4电容变质,容量由1000uF降为3uF,将C4更换后启动运行正常。
2.显示“E1”
首先,测0VC和AC L间有220V交流电,重点检查电路板,发现光电耦台器V1的③、④脚开路,更换后故障排除。
3.制热效果差
(1)测辅助电加热器1DR~3DR两端无电压,但J4继电器已动作,测52C交流接触器没有动作,后检查TFU限温器开路,更换后故障排除。
(2)测辅助电加热器1DR~3DR两端无电压,J4继电器没有动作,测CN3⑦脚无4.9V控制电压输入,问题出在液晶显示器LCD上,发现管温感温包TH3阻值只有430Ω,更换后故障排除。
4.无任何显示
经测FS3保险管熔断,更换后一上电又熔断,检查发现压敏电阻ZNR1已击穿短路,更换后故障排除。

网友评论